项目原建筑是一栋400平米的钢结构旧厂房,业主对办公空间设计的要求是-创新,独立,开放。


在办公室设计过程中保留原有建筑的独特精神气质,同时让业主方品牌理念与这种精神气质无缝衔接并延续才是这个空间应该有的调性,粗犷锐利的工业风格无疑是最适合这个空间的。


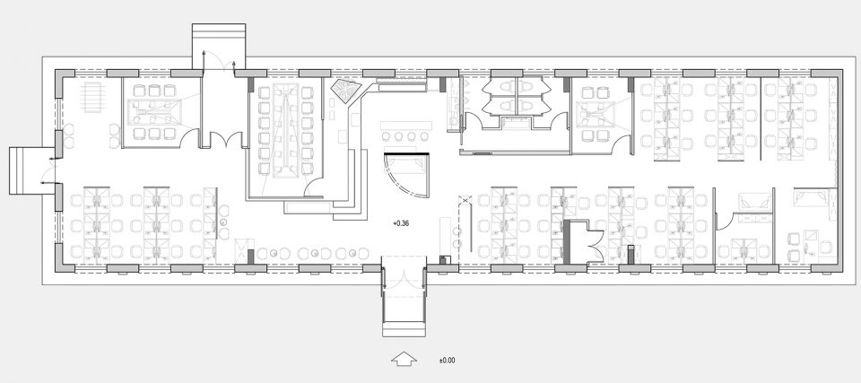
在狭长的空间中设置若干空间节点,最大程度利用层高优势,营造空间的丰富层次和节奏感。入口一侧设置的会议室,坐落在台阶上,形成令人眼前一亮的视觉亮点。台阶设置坐垫作为公共空间的座椅使用,同时往茶水间延伸,将活跃的空间连成一体。

办公室设计大量运用金属及混凝土材质,地面及墙面采用混凝土质感的自流平和水泥艺术涂料,形成粗粝质朴的空间基调。局部吊顶及空间隔断大量采用黑色金属网,在不阻隔视线的同时,划分出功能分区并体现空间的序列感和仪式感。定制家具的材料则选用黑色金属板及水泥板,搭配黑色皮质沙发,形成软硬结质感结合的工业风调性。

了解更多办公空间设计的内容请登录www.hzpsdesign.cn